|
|
|
Call Ian at
604 YOUR KEY to view this property
Ian Brett
Phone: (604) 968-7539 ian@captainvancouver.com |
|||||||||||||||||
| Property Details | |||
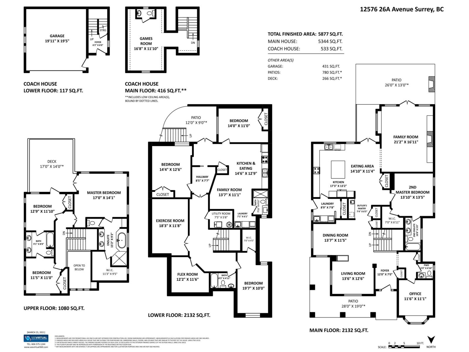
| Welcome to this gated custom-built home offering unmatched quality in sought-after Crescent Heights. This impressive 5,877 sq.ft. residence features a 5,344 sq.ft. main plus a 533 sq.ft. coach house which is perfect for your home business, along with two primary bedrooms. Situated on a south-facing 10,863 sq.ft. lot, the property offers exceptional privacy. The gourmet kitchen is equipped with high-end stainless steel appliances, custom cabinetry, a butler's pantry, and elegant lighting accents. The spacious family room showcases a soaring vaulted ceiling and a stunning stone fireplace. Additional features include wide-plank hardwood floors, 9-foot ceilings, 8-foot doors, and a covered patio with fireplace. A one-bdrm suite in the basement.Enjoy a short walk to Crescent Beach. (id:5347) | |||
| Property Value: | $3,190,000 | Living Area: | 5344 sq.ft. |
| Year Built: | 2009 | Bedrooms: | 7 |
| House Type: | House | Bathrooms: | 7 |
| Property Type: | Single Family | Owner Type: | Freehold |
|
Appliances: Washer, Refrigerator, Hot Tub, Dishwasher, Stove, Dryer, Garage door opener View: City view, Ocean view, View Open House: Saturday Apr 25, at 1:30 PM Added to MLS: 4/11/2026 11:30:37 PM |
|||





