|
|
|
Call Ian at
604 YOUR KEY to view this property
Ian Brett
Phone: (604) 968-7539 ian@captainvancouver.com |
|||||||||||||||||
| Property Details | |||
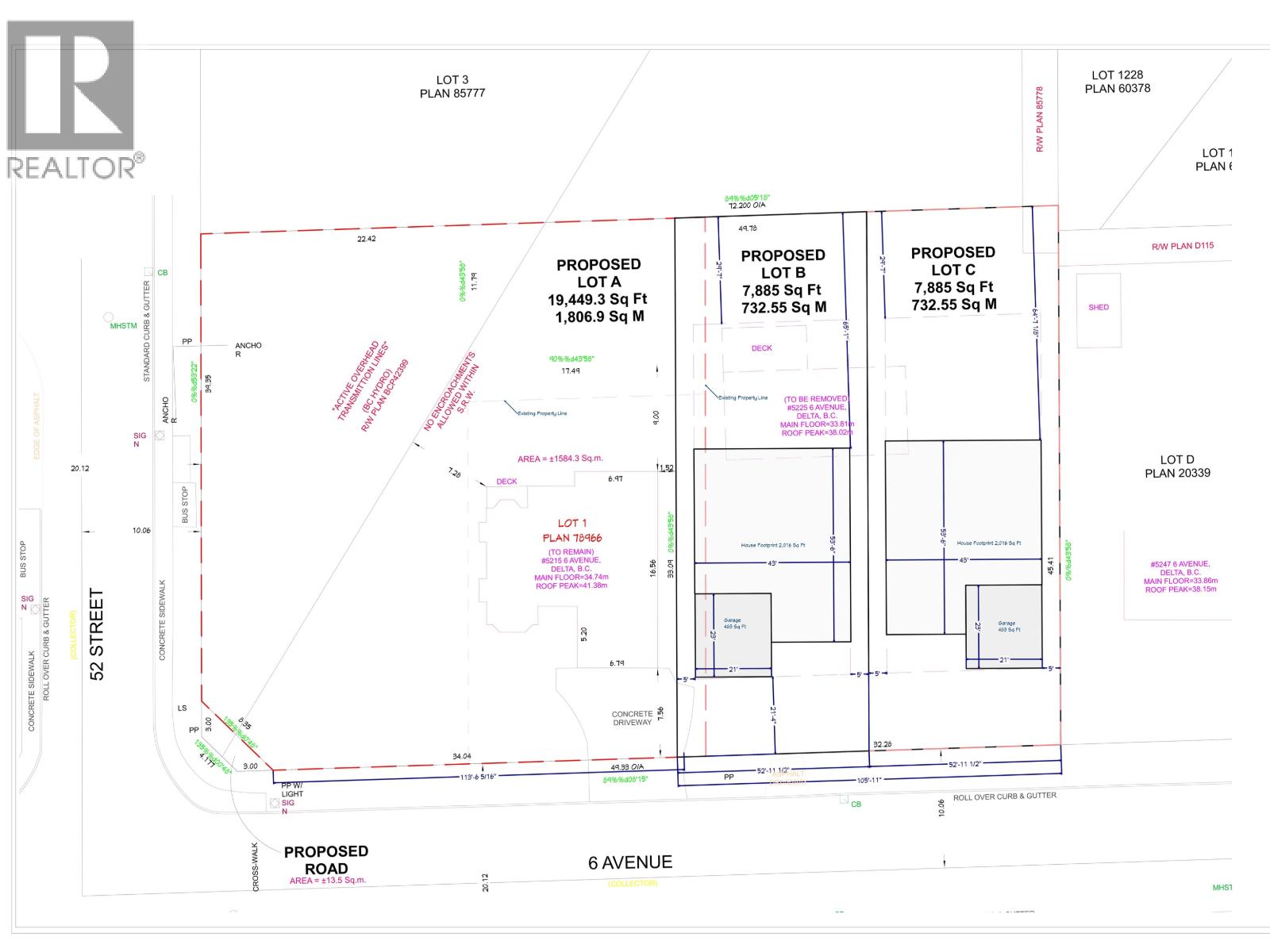
| Opportunity to purchase a 6555 sq.ft.(0.15 acre)-with RS4 zoning. To be sold in conjunction with adjacent property-5225 6th Ave 28,749 sq. ft.lot (0.66 acre) MLS #R3099751. Total parcel size of 35,159 sq.ft. Potential to build homes/duplex + coach homes or mixed residential (new OCP allows up to 16 townhomes or more, or 4 units per lot-2 rectangular lots) buyer to verify with the city. Must be sold together (5215 +5225 6th Ave.) Excellent location in central Tsawwassen, close to transit, schools and amenities. Arborist report available of the mostly level lots. Home is updated, 3422 sq.ft., main floor living, four bedrooms on second level plus den/bdrm on main, large double car garage. Contact LS for further information package! (id:5347) | |||
| Property Value: | $2,200,000 | Living Area: | 3422 sq.ft. |
| Year Built: | 1989 | Bedrooms: | 4 |
| House Type: | House | Bathrooms: | 3 |
| Property Type: | Single Family | Owner Type: | Freehold |
|
Appliances: All Features: Central location Added to MLS: 3/14/2026 2:10:04 AM |
|||





