|
Call Ian at
604 YOUR KEY to view this property
Ian Brett
Phone: (604) 968-7539 ian@captainvancouver.com |
|||||||||||||||||
| Property Details | |||
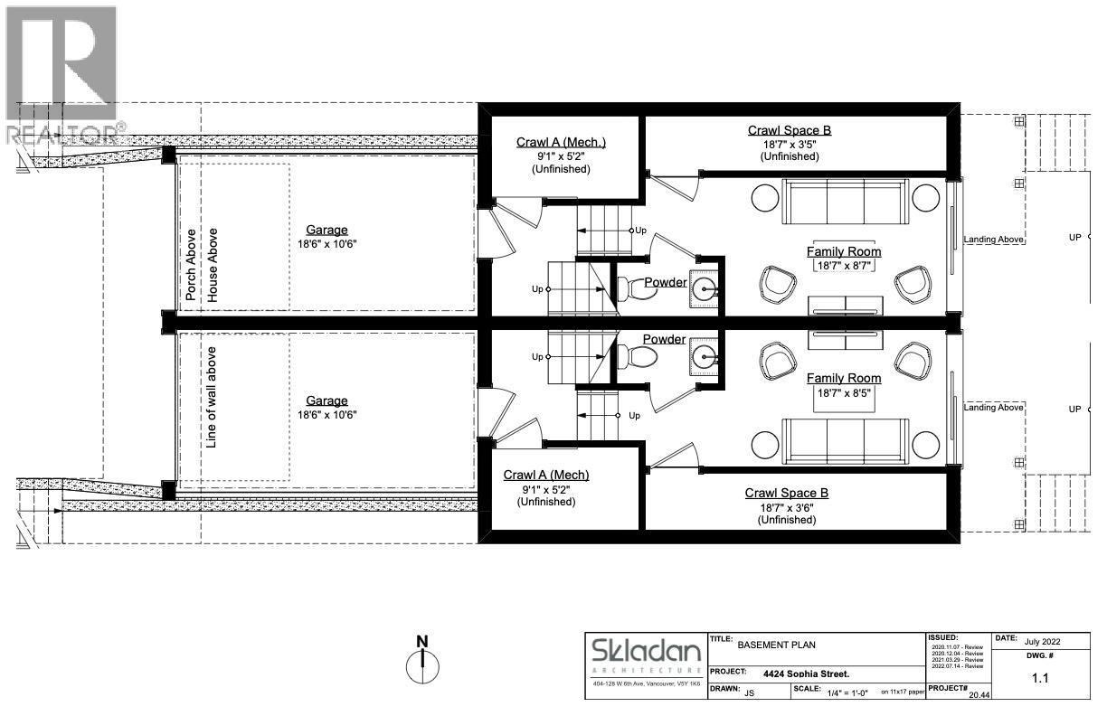
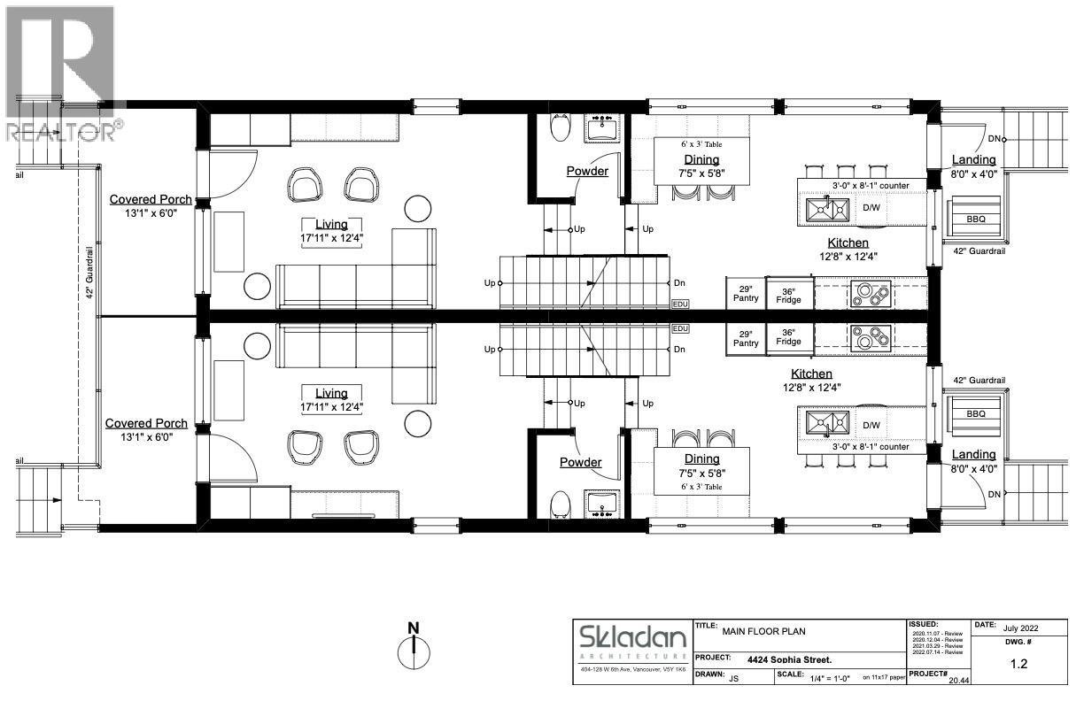
| Are you looking for a project in a desirable neighbourhood, but can't seem to find the right one and you don't want to wait for the cumbersome permitting process? Perhaps you're looking to build something for you and your family? 4424 Sophia might be the one for you - a rare opportunity to purchase a vacant building lot with approved plans and an active building permit, steps from John Street, East of Main. Larger than standard 34' x 132' lot provides an exceptionally bright East/West exposure. Designed as 1,594 SQ.FT. 3 bedroom homes with basements. Private east-facing rear yards with no lane for additional privacy. Call for more info. (id:5347) | |||
| Property Value: | $2,200,000 | Living Area: | 0 sq.ft. |
| Year Built: | Bedrooms: | 0 | |
| House Type: | Bathrooms: | 0 | |
| Property Type: | Vacant Land | Owner Type: | Freehold |
|
Features: Central location Added to MLS: 3/2/2026 5:05:20 PM |
|||





