|
Call Ian at
604 YOUR KEY to view this property
Ian Brett
Phone: (604) 968-7539 ian@captainvancouver.com |
|||||||||||||||||
| Property Details | |||
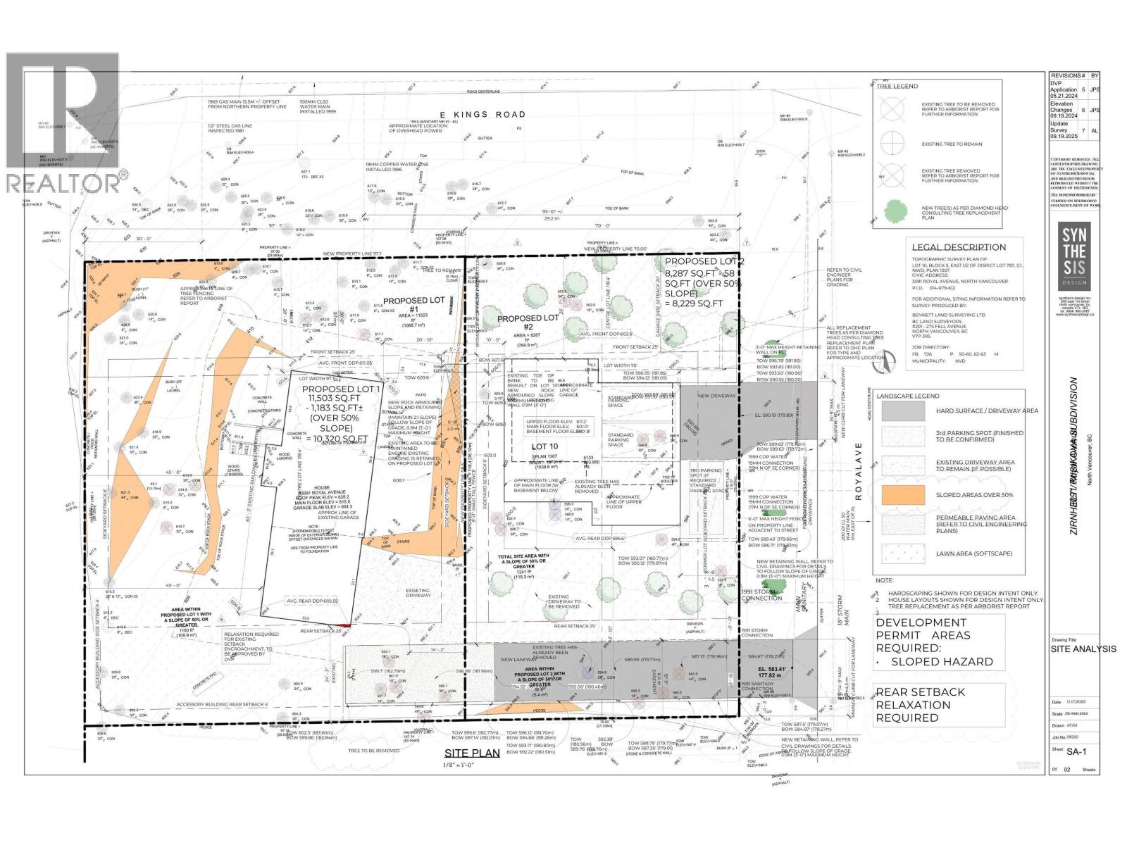
| INVESTOR ALERT - CONDITIONALLY SUBDIVIDED. Sale price is only for the future newly created LOT 2 (approx. 8,287 sqft). Please note the MLS may display the full existing parcel; however, the list price reflects the future newly created LOT 2 only, subject to final subdivision approval. Rare opportunity to secure a prime corner lot nearing final subdivision approval, offering exceptional street appeal and a bright, highly usable building site. Approximately 8,287 square ft with 118 ft frontage and 70 ft depth, providing flexible design options for builders or custom home buyers. Arborist report complete, with selective tree removal scheduled, creating a clean and ready-to-build opportunity so you can move efficiently toward construction. Condition letter received with final items outlined. Ideally positioned between Lynn Valley and Upper Lonsdale, with convenient access to downtown Vancouver, parks, trails, and everyday shopping amenities. (id:5347) | |||
| Property Value: | $1,679,000 | Living Area: | 202 sq.ft. |
| Year Built: | 2026 | Bedrooms: | 0 |
| House Type: | Bathrooms: | 0 | |
| Property Type: | Single Family | Owner Type: | Freehold |
|
Features: Central location Added to MLS: 2/23/2026 6:25:48 PM |
|||





