|
|
|
Call Ian at
604 YOUR KEY to view this property
Ian Brett
Phone: (604) 968-7539 ian@captainvancouver.com |
|||||||||||||||||
| Property Details | |||
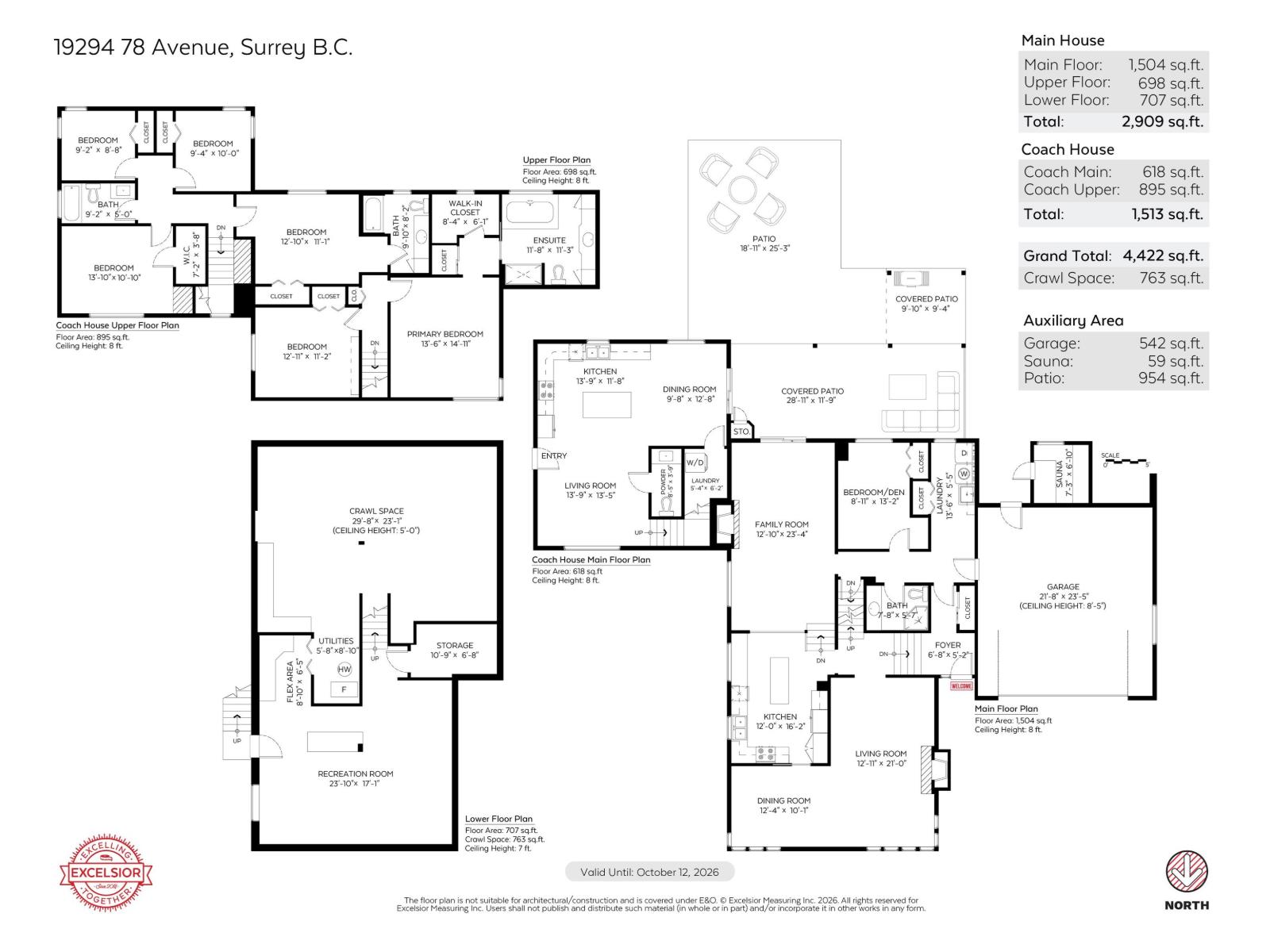
| Prime 1.19 acre property on a quiet street in a sought after location. This beautifully updated legal duplex style home offers exceptional flexibility as a strong investment or ideal multifamily residence. With 7 bedrooms, 5 bathrooms and over 4.400 sq ft, the layout provides spacious living on all levels. Multiple kitchens, generous living area and private spaces make it perfect for extended family. Ample parking, double garage and fantastic outbuildings add to the value. A rare opportunity offering space, income potential and long term upside in a prime setting. (id:5347) | |||
| Property Value: | $3,499,000 | Living Area: | 4422 sq.ft. |
| Year Built: | 1980 | Bedrooms: | 7 |
| House Type: | House | Bathrooms: | 5 |
| Property Type: | Single Family | Owner Type: | Freehold |
|
Appliances: Washer, Refrigerator, Dishwasher, Stove, Dryer, Storage Shed Added to MLS: 2/20/2026 8:10:42 PM |
|||





