|
|
|
Call Ian at
604 YOUR KEY to view this property
Ian Brett
Phone: (604) 968-7539 ian@captainvancouver.com |
|||||||||||||||||
| Property Details | |||
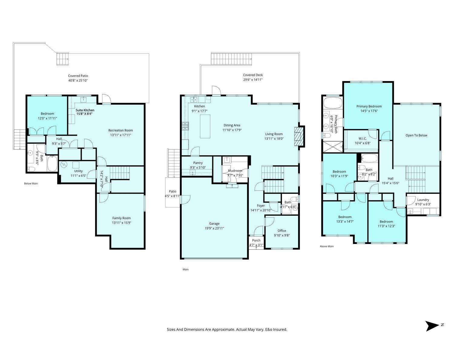
| Brand new 2-storey home w/ a suited walk-out basement, quality built by Steele Properties! This thoughtfully designed home sets the standard for energy efficiency. Featuring 4 spacious bdrms up, incl a beautiful primary suite w/ a huge W/I closet & 5pc ensuite, plus a bdrm level laundry room. The main floor offers an open-concept layout w/ vaulted ceilings in the great room, gourmet kitchen w/ high-end appliances, stone countertops, an awesome butler pantry, den w/ high ceilings & a mudroom w/ built in storage located off the 2-car garage. Bsmt has a bright 1-bedroom LEGAL suite w/ separate access & separate hydro meter, a large covered patio & extra rec space for upstairs occupants. Stunning views & outdoor living spaces complete this must-see home! * PREC - Personal Real Estate Corporation (id:5347) | |||
| Property Value: | $1,348,800 | Living Area: | 3710 sq.ft. |
| Year Built: | 2026 | Bedrooms: | 5 |
| House Type: | House | Bathrooms: | 4 |
| Property Type: | Single Family | Owner Type: | Freehold |
|
Appliances: Washer, Refrigerator, Dishwasher, Stove, Dryer View: Mountain view, Valley view Added to MLS: 2/23/2026 7:00:20 PM |
|||





