|
|
|
Call Ian at
604 YOUR KEY to view this property
Ian Brett
Phone: (604) 968-7539 ian@captainvancouver.com |
|||||||||||||||||
| Property Details | |||
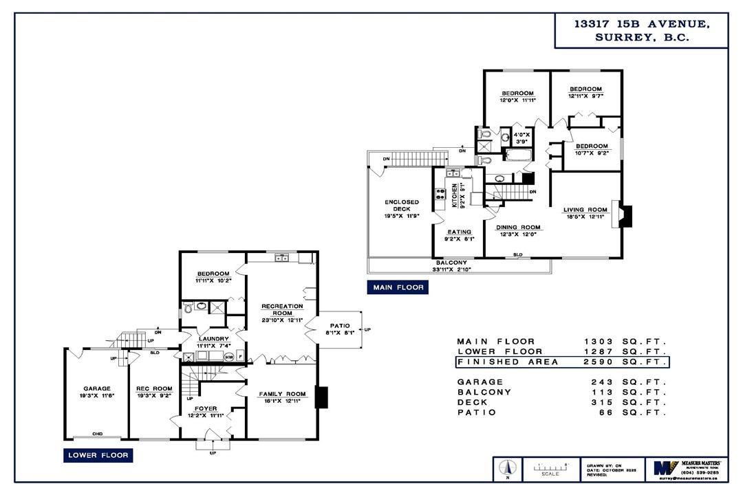
| Lot Size: 9,679 SF rebuilding site tomorrow, two road frontages: 16th avenue has a driveway and 15B Avenue cul-de-sac. The frontage on 16th Avenue is 101 ft and the cul-de-sac entry is 32 ft, western exposure. Currently, home is an ideal four bedroom revenue house 2,590 SF (floor plan online) - could have two kitchens *2 bedroom suites on Main floor and a 3 bedroom suite up*. Ocean Park is an excellent family neighborhood, very quiet cul-de-sac. Zoning: R3-Urban residential. Ample shopping in Ocean Park Village. Create two duplexes, a fourplex or laneway homes. Transit on the block. School Catchments: Ray Shepherd Elementary & Elgin Park Secondary. Great Opportunity! (id:5347) | |||
| Property Value: | $1,375,000 | Living Area: | 2590 sq.ft. |
| Year Built: | 1981 | Bedrooms: | 4 |
| House Type: | House | Bathrooms: | 3 |
| Property Type: | Single Family | Owner Type: | Freehold |
|
Appliances: Washer, Refrigerator, Dishwasher, Stove, Dryer Added to MLS: 2/22/2026 11:40:57 PM |
|||





