|
|
|
Call Ian at
604 YOUR KEY to view this property
Ian Brett
Phone: (604) 968-7539 ian@captainvancouver.com |
|||||||||||||||||
| Property Details | |||
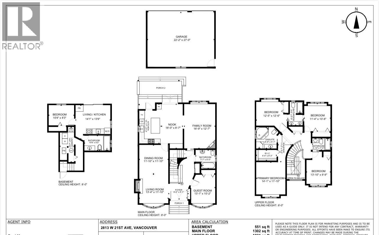
| South exposure, bright, and quiet. Well kept over 2,930 square ft of living space on a 4,883 square ft lot with a 40 ft frontage. Features 6 bedrooms plus a den & 5 bathrooms. Includes a one-bedroom suite in the basement and a 500 square ft crawl space for storage. The recent updates to the home include: Just freshly painted, Hot water tank and boiler for radiant heat replaced within the last two years. New windows installed in 2020. Enjoy a nice 350 square ft sundeck in the backyard and a triple-car garage. Two sets of laundry. Located in the school catchment for Carnarvon Elementary and Prince of Wales Secondary. Close to Carnarvon Park and nearby shops. Easy to show. Open house Feb 15 from 2 to 4pm (id:5347) | |||
| Property Value: | $3,098,000 | Living Area: | 2935 sq.ft. |
| Year Built: | 1994 | Bedrooms: | 6 |
| House Type: | House | Bathrooms: | 5 |
| Property Type: | Single Family | Owner Type: | Freehold |
|
Appliances: All Features: Central location Open House: Sunday Feb 15, at 2:00 PM Added to MLS: 2/14/2026 1:10:22 AM |
|||





