|
|
|
Call Ian at
604 YOUR KEY to view this property
Ian Brett
Phone: (604) 968-7539 ian@captainvancouver.com |
|||||||||||||||||
| Property Details | |||
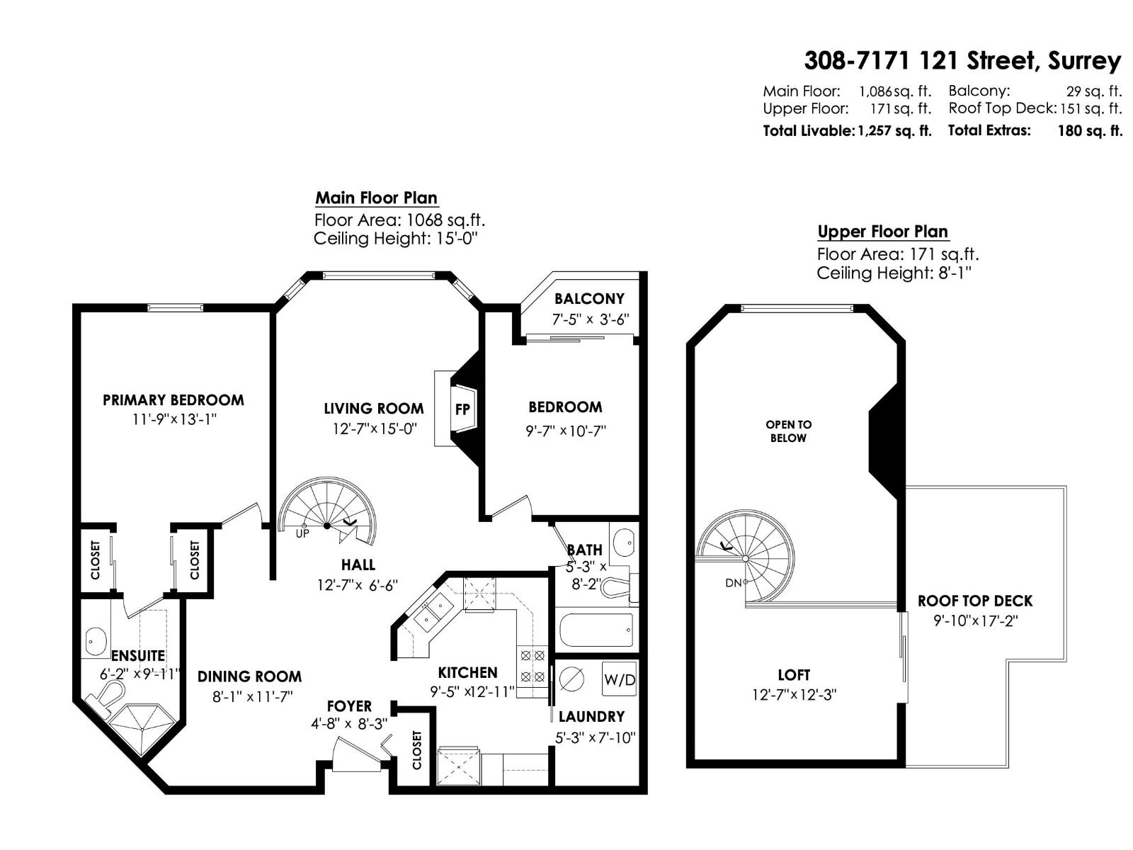
| 17-ft lofted ceilings highlight this bright and spacious 2-bed, 2-bath, 1,224 sq ft top-floor condo in The Highlands complex! Cathedral-style windows soak the home in natural light. The updated open kitchen features stainless steel appliances, white shaker cabinetry, and a full walk-in laundry room with extra storage. The spacious primary bedroom offers a walk-through closet and 4-piece ensuite, while the second bedroom is light-filled with access to its own private balcony. A spiral staircase leads to a cozy upper loft, and sliding glass doors open out to a large, private rooftop patio - perfect for relaxing or entertaining. Secure storage on the same floor. 2 Parking! Beautifully maintained grounds, and a great location close to transit, shopping, restaurants, and entertainment. (id:5347) | |||
| Property Value: | $575,000 | Living Area: | 1172 sq.ft. |
| Year Built: | 1991 | Bedrooms: | 2 |
| House Type: | Apartment | Bathrooms: | 2 |
| Property Type: | Single Family | Owner Type: | Condo/Strata |
| Maint Fee: | $565.66 | Parking: | 2 |
|
Appliances: Washer, Refrigerator, Dishwasher, Stove, Dryer Added to MLS: 2/5/2026 4:06:05 PM |
|||





