|
|
|
Call Ian at
604 YOUR KEY to view this property
Ian Brett
Phone: (604) 968-7539 ian@captainvancouver.com |
|||||||||||||||||
| Property Details | |||
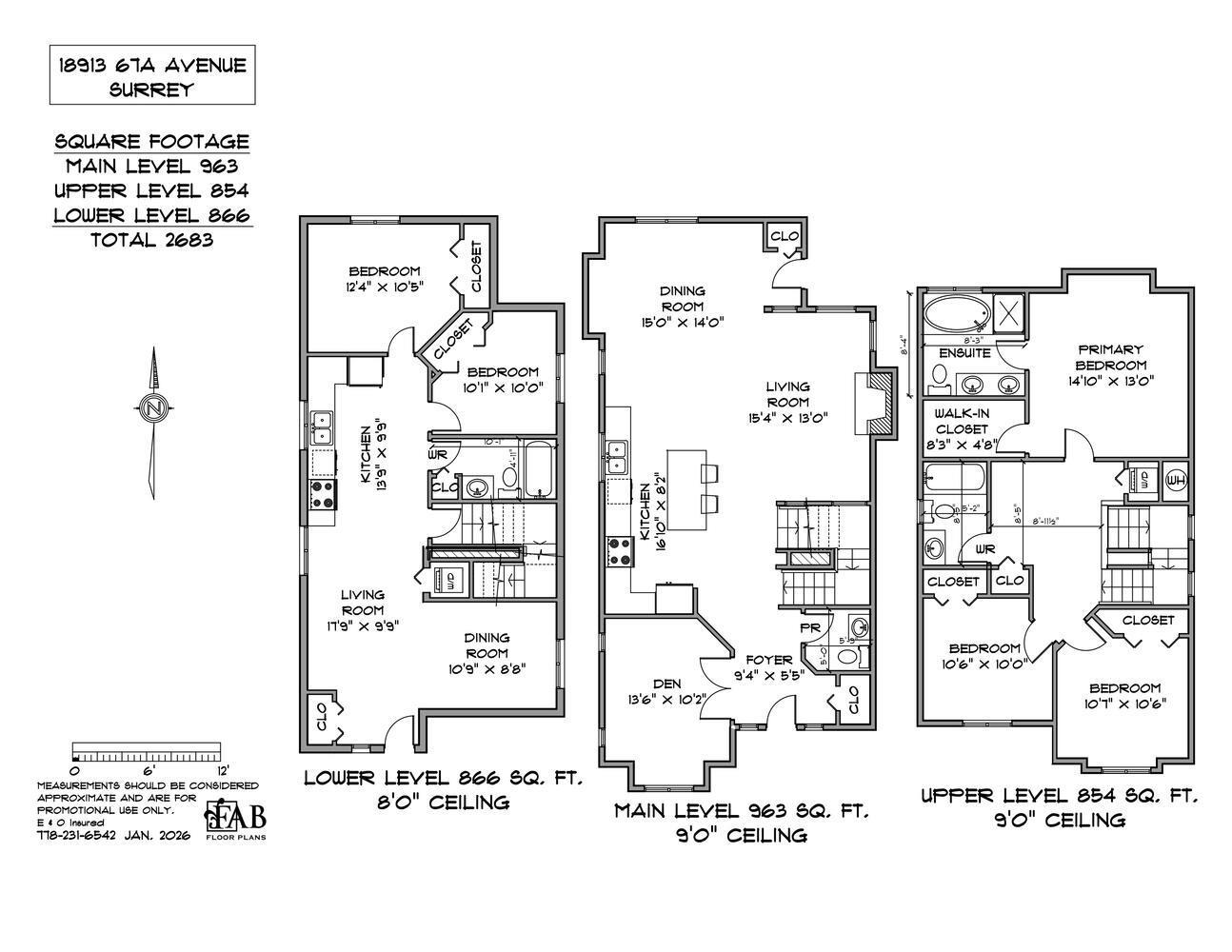
| The subject property is a two-story single-family home with a fully finished basement, built in 2008 and located at 18913 67A Avenue in the Clayton Heights area of Surrey. The home offers approximately 2,683 square feet of finished living space over three levels, including 866 square feet on the lower level, 963 square feet on the main floor, and 854 square feet on the upper level. The basement contains an unauthorized private-entry suite suitable for extended family use. The dwelling is wood-frame construction with Hardie plank siding, asphalt shingle roofing, and a detached double garage. Overall condition is average with standard finishes and good remaining economic life. The neighborhood is a well-established suburban area close to schools, shopping, parks, and major routes. (id:5347) | |||
| Property Value: | $1,198,000 | Living Area: | 2683 sq.ft. |
| Year Built: | 2008 | Bedrooms: | 5 |
| House Type: | House | Bathrooms: | 4 |
| Property Type: | Single Family | Owner Type: | Freehold |
|
View: City view Added to MLS: 2/3/2026 1:10:29 AM |
|||





