|
|
|
Call Ian at
604 YOUR KEY to view this property
Ian Brett
Phone: (604) 968-7539 ian@captainvancouver.com |
|||||||||||||||||
| Property Details | |||
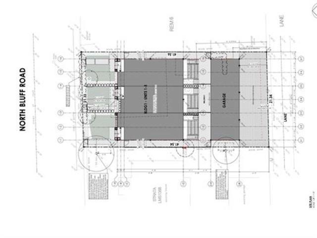
| HOUSEPLEX Development Opportunity with up to 4 UNITS in White Rock! Situated on a rare lot allowing up to 4 units, this property features back lane access and a rooftop deck. Triplex plans have already been APPROVED by the City of White Rock. This prime development is just minutes from the iconic White Rock Pier and offers convenient access to transit. Additionally, it is located within the highly sought-after school catchment areas of Bayridge Elementary and Semiahmoo Secondary. Don't miss this exceptional investment opportunity! (id:5347) | |||
| Property Value: | $1,498,000 | Living Area: | 1230 sq.ft. |
| Year Built: | 1953 | Bedrooms: | 3 |
| House Type: | House | Bathrooms: | 1 |
| Property Type: | Single Family | Owner Type: | Freehold |
|
Added to MLS: 1/30/2026 12:45:36 AM |
|||





