|
|
|
Call Ian at
604 YOUR KEY to view this property
Ian Brett
Phone: (604) 968-7539 ian@captainvancouver.com |
|||||||||||||||||
| Property Details | |||
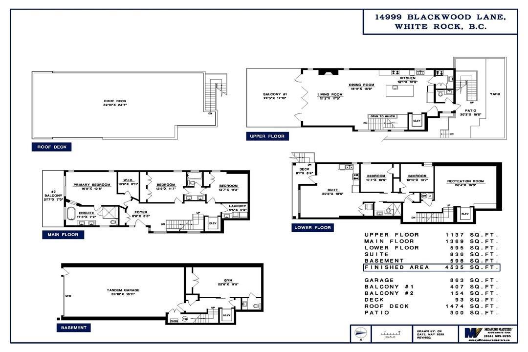
| Incredible pier & ocean views, 4,535 SF of living space on 4 levels maximizing views & privacy. Elevator, nano walls, A/C, radiant heated floors w/ concrete between floors, exec contemp kitchen w/island, euro appl pkg & wok kitchen. Control4. Lux spa inspired bathrms & 5 large bedrooms. Primary bedroom w/ocean view. Gym, media lounge & legal 2 bdrm suite. View open & covered balconies, patios & sundecks exceed 2,500 SF w/ a rooftop deck overlooking the pier. Entertain in grand style on top of the world. Easy walking distance to dining at the pier or stroll White Rock Beach Promenade. Schools: White Rock Elementary & Semiahmoo Secondary. 4 car garage 708 SF & driveway for 4 cars. East side of property, city green Space-no neighbor. Brochure avail. ONE OF THE BEST VIEWS IN THE CITY! (id:5347) | |||
| Property Value: | $3,799,000 | Living Area: | 4535 sq.ft. |
| Year Built: | 2019 | Bedrooms: | 5 |
| House Type: | House | Bathrooms: | 5 |
| Property Type: | Single Family | Owner Type: | Freehold |
|
Appliances: Washer, Refrigerator, Dishwasher, Stove, Dryer, Alarm System, Oven - Built-In, Garage door opener View: Ocean view, View, View of water Added to MLS: 1/26/2026 8:05:56 PM |
|||





