|
|
|
Contact your
REALTOR® for this property
Ian Brett
Phone: (604) 968-7539 ian@captainvancouver.com |
|||||||||||||||||
| Property Details | |||
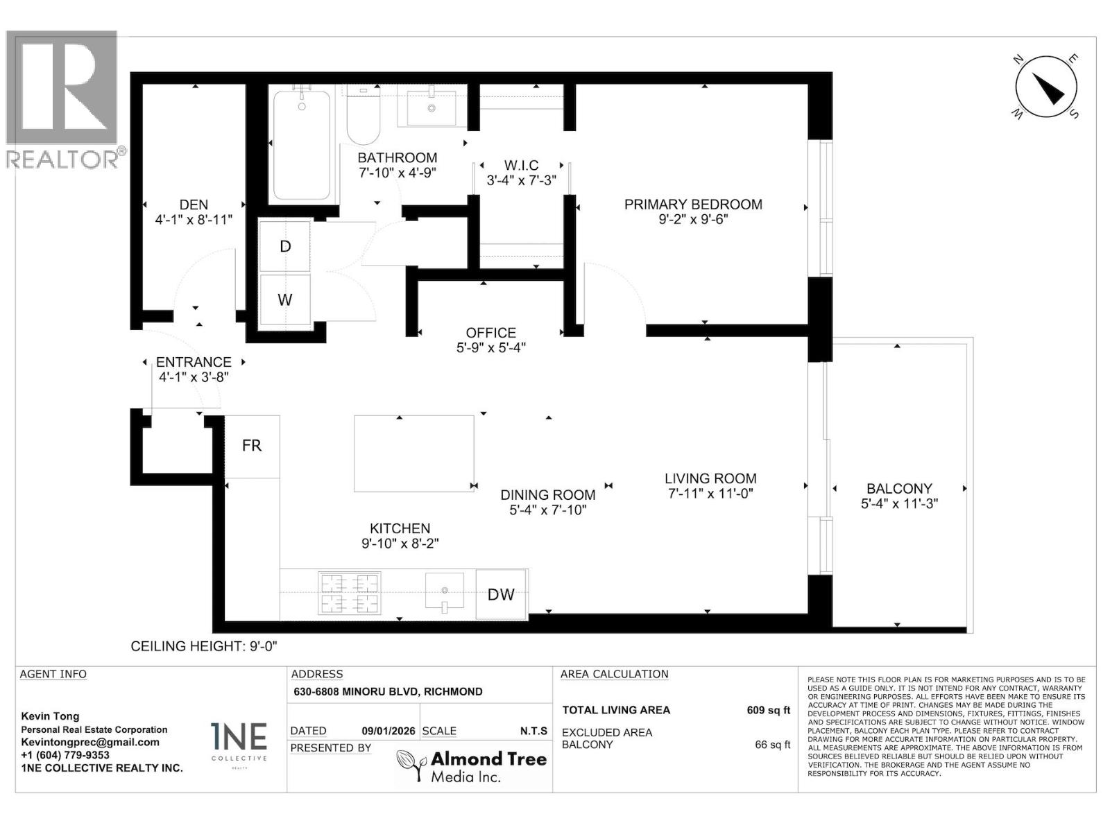
| Location, Location, Location! RC at CF Richmond Centre by SHAPE. This south-east facing 1 bedroom + den features a luxury kitchen with Gaggenau appliances, spacious open-concept living, and 1 parking stall. Enjoy access to 73,000 sq. ft. of exclusive priv | |||
| Property Value: | $688,000 | Living Area: | sq.ft. |
| Year Built: | 2025 | Bedrooms: | 1 |
| House Type: | Apartment | Bathrooms: | 1 |
| Property Type: | Owner Type: | Condo/Strata | |
|
Appliances: All Features: Central location Added to MLS: 1/13/2026 12:40:17 AM |
|||





