|
Call Ian at
604 YOUR KEY to view this property
Ian Brett
Phone: (604) 968-7539 ian@captainvancouver.com |
|||||||||||||||||
| Property Details | |||
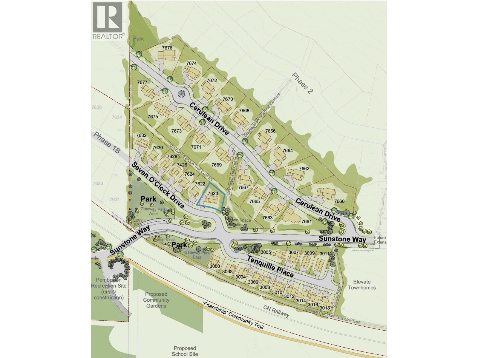
| Welcome to 7620 Seven O'Clock Drive, an easy-build 7,536 square ft end lot in Sunstone with totally unobstructed views of Mount Currie. Gently sloping and designed for a custom home with big windows and great outdoor living, this is your chance to get into one of Pemberton's most desirable neighbourhoods at exceptional value. Priced to sell, it is currently the lowest-priced building lot in the area. Enjoy bike trails, hiking, golf at nearby Big Sky and Sunstone golf courses. Whistler's world-class skiing just 25 minutes away. (id:5347) | |||
| Property Value: | $459,000 | Living Area: | 0 sq.ft. |
| Year Built: | Bedrooms: | 0 | |
| House Type: | Bathrooms: | 0 | |
| Property Type: | Vacant Land | Owner Type: | Freehold |
|
View: View Added to MLS: 12/3/2025 1:10:50 AM |
|||





