|
|
|
Call Ian at
604 YOUR KEY to view this property
Ian Brett
Phone: (604) 968-7539 ian@captainvancouver.com |
|||||||||||||||||
| Property Details | |||
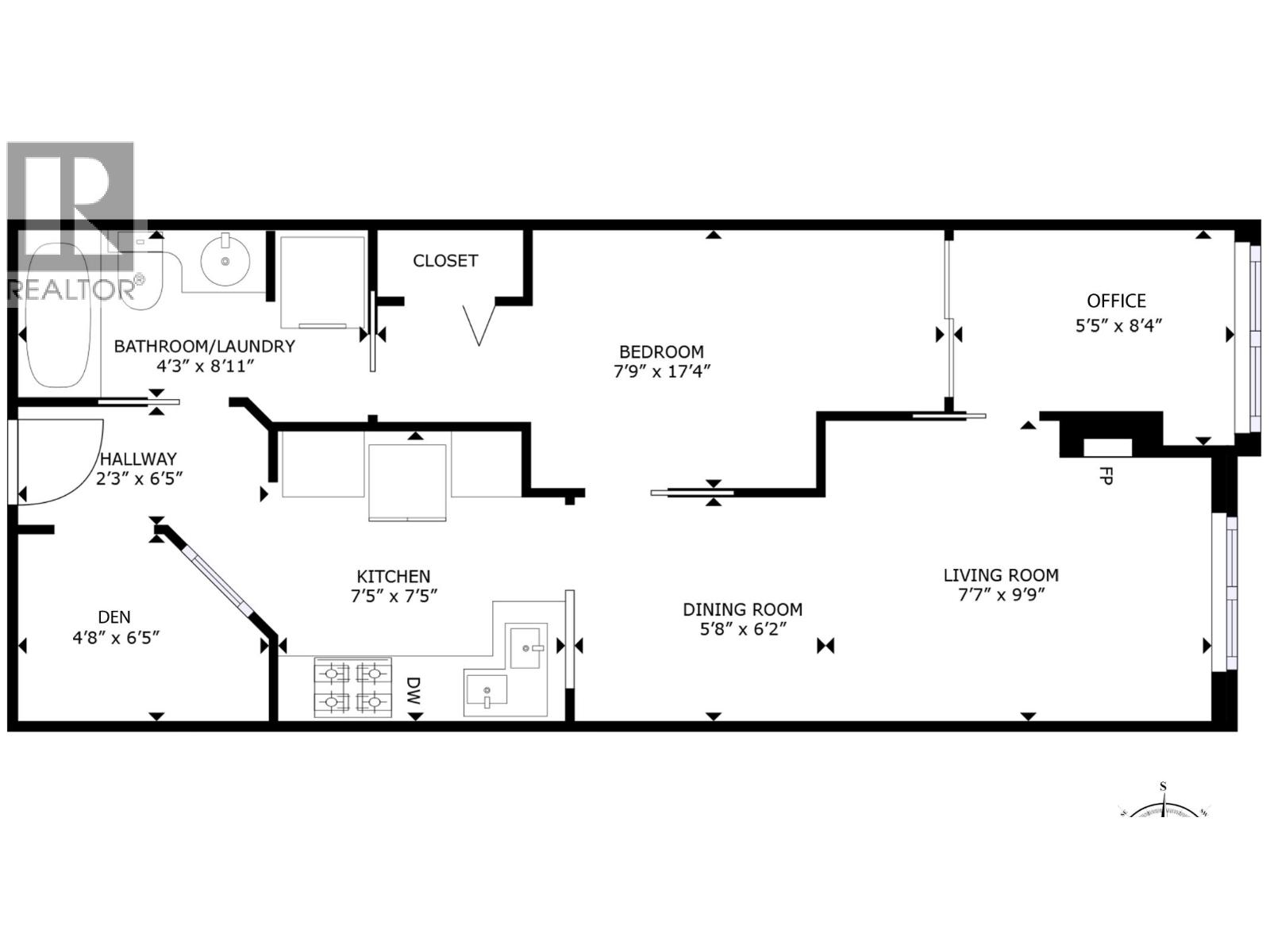
| LOCATION! Welcome to The Soho, a boutique low-rise in Vancouver´s desirable Westside. This well-maintained 1 Bedroom + Den+Office unit offers a functional layout with a peaceful quiet street outlook, ideal for comfortable urban living. The open-concept li | |||
| Property Value: | $499,000 | Living Area: | sq.ft. |
| Year Built: | 2002 | Bedrooms: | 1 |
| House Type: | Apartment | Bathrooms: | 1 |
| Property Type: | Owner Type: | Condo/Strata | |
|
Appliances: All, Oven - Built-In Open House: Sunday Added to MLS: 1/22/2026 9:16:12 PM |
|||





