|
|
|
Call Ian at
604 YOUR KEY to view this property
Ian Brett
Phone: (604) 968-7539 ian@captainvancouver.com |
|||||||||||||||||
| Property Details | |||
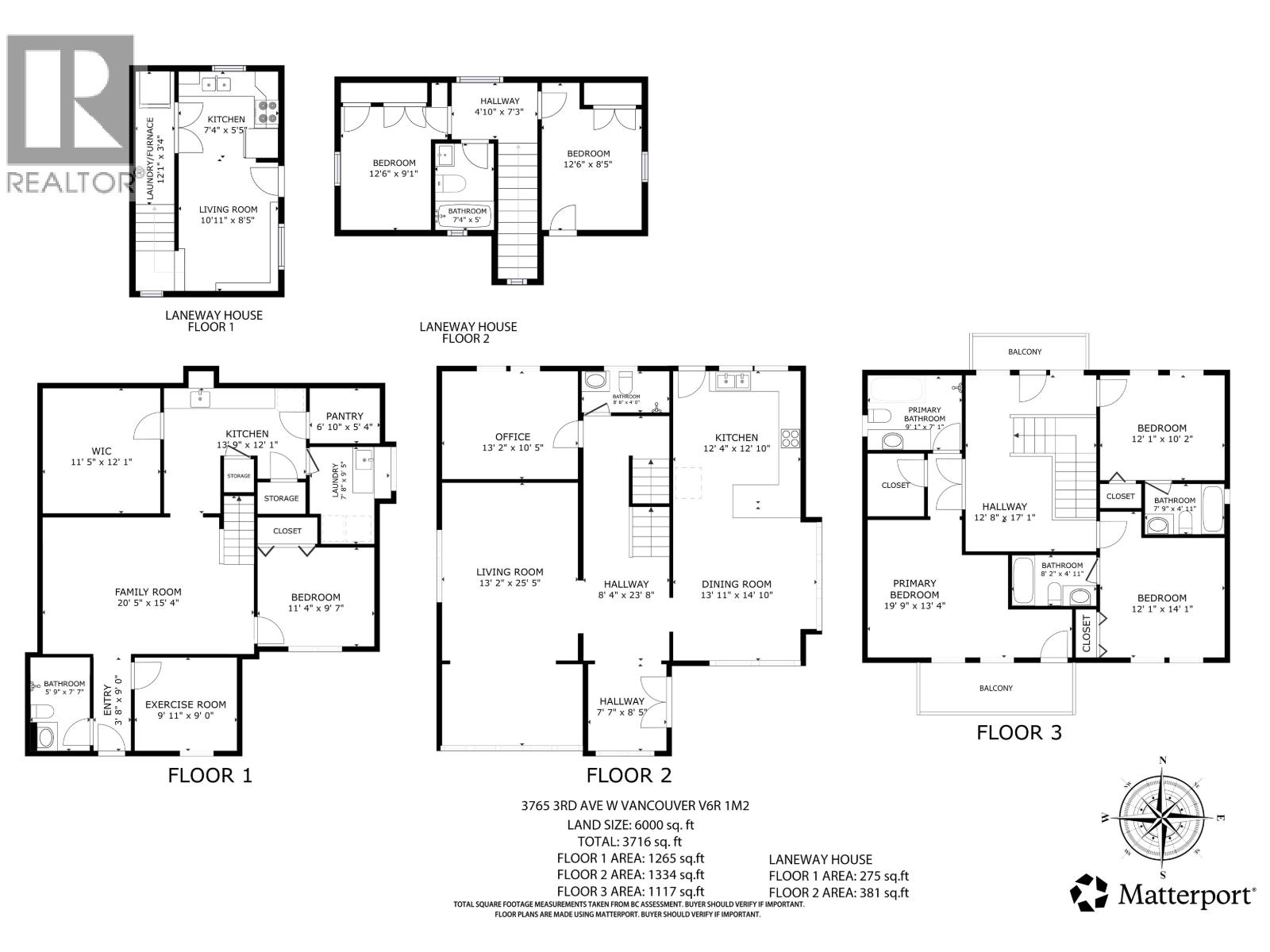
| Luxury Home in Vancouver's Prestigious Point Grey Neighborhood Prime Location Situated in one of Vancouver West's most coveted areas, Point Grey Walkable to Jericho Beach Park & Royal Vancouver Yacht Club Combines urban convenience with peaceful serenity Property Highlights 6,000 sqft rectangular lot Originally built in 1915, completely revitalized in 2014 with $1.3M+ in upgrades: o New roof and exterior walls o Radiant heating + AC system o Professionally landscaped gardens o New garage + laneway house (secondary suite) Preserves original sturdy structure while incorporating modern design Investment Advantages Currently occupied by high-quality tenants (stable cash flow) Laneway house generates additional $X,000/month income Ideal for both luxurious living and investment purposes (id:5347) | |||
| Property Value: | $4,900,000 | Living Area: | 4372 sq.ft. |
| Year Built: | 1915 | Bedrooms: | 6 |
| House Type: | House | Bathrooms: | 6 |
| Property Type: | Single Family | Owner Type: | Freehold |
|
Appliances: All Added to MLS: 2026-02-02T19:15:27.62Z |
|||





