|
Call Ian at
604 YOUR KEY to view this property
Ian Brett
Phone: (604) 968-7539 ian@captainvancouver.com |
|||||||||||||||||
| Property Details | |||
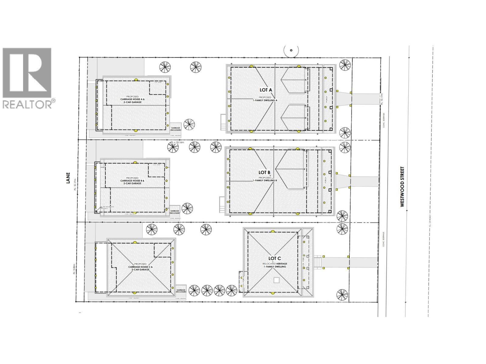
| Exceptional development opportunity in a prime Coquitlam location! This large property has been subdivided into three lots - 910, 914, and 918 Westwood Street - with drawings complete and building permits in progress. Ideal for builders or investors seeking a ready-to-go project in a growing neighbourhood. Offering a rare chance to secure a multi-lot development site with excellent future potential. City allows development for approx 2,800sf of living space, including a 1 bedroom couch house and 2 bedroom basement suite for lot 910. (id:5347) | |||
| Property Value: | $888,000 | Living Area: | 0 sq.ft. |
| Year Built: | Bedrooms: | 0 | |
| House Type: | Bathrooms: | 0 | |
| Property Type: | Vacant Land | Owner Type: | Freehold |
|
Features: Central location Added to MLS: 11/6/2025 12:10:48 AM |
|||





