|
|
|
Contact your
REALTOR® for this property
Ian Brett
Phone: (604) 968-7539 ian@captainvancouver.com |
|||||||||||||||||
| Property Details | |||
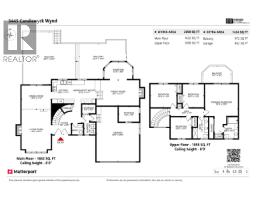
| A hidden gem in a quiet area of North Tsawwassen. This totally updated home with 4 bedrooms+3 bathroom, lovingly cared for by these long term owners who have improved everything over the last 15 years (over $200K spent), including: custom kitchen, baths, oversized tub, suspended vanities, Hardi board siding, concrete tile roof, new windows, flooring, furnace, on demand hot water etc. Private office in the oversized garage with loads of storage. Balcony off the master bedroom with a view. Just 2 blks from Southpointe Academy , Delta Rec Center and transit. Walk to parks and play fields too. Owners say it is time to downsize so the next owner can enjoy this special family home. Check out the huge rear sundeck too. (id:5347) | |||
| Property Value: | $1,499,900 | Living Area: | 2476 sq.ft. |
| Year Built: | 1981 | Bedrooms: | 4 |
| House Type: | House | Bathrooms: | 3 |
| Property Type: | Single Family | Owner Type: | Freehold |
|
Appliances: All Features: Central location Fixtures: Drapes/Window coverings View: View Added to MLS: 12/8/2025 2:44:47 PM |
|||





