|
|
|
Contact your
REALTOR® for this property
Ian Brett
Phone: (604) 968-7539 ian@captainvancouver.com |
|||||||||||||||||
| Property Details | |||
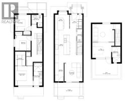
| Experience the future of living in Mount Pleasant-one of Canada´s top neighbourhoods. This fully detached Net Zero home at 20 W 14th Ave is a rare first of its kind, built for comfort and sustainability with A/C, solar power, and EV-ready parking. Inside, a sleek Miele kitchen with panel-ready appliances, Dekton counters, and soft-close cabinetry pairs with spa-inspired baths featuring Porcelanosa tile, curbless showers, and European vanities. Premium finishes include solid wood doors, Olivari brass hardware, Hansgrohe fixtures, built-in closets, blinds, and stacked Miele laundry. Custom millwork, a sunny yard, landscape lighting, and 450 square ft crawl space complete this unique blend of luxury and design. (id:5347) | |||
| Property Value: | $3,210,000 | Living Area: | 2595 sq.ft. |
| Year Built: | 2025 | Bedrooms: | 4 |
| House Type: | House | Bathrooms: | 4 |
| Property Type: | Single Family | Owner Type: | Freehold |
|
Features: Central location Added to MLS: 12/6/2025 5:08:53 PM |
|||





