|
|
|
Contact your
REALTOR® for this property
Ian Brett
Phone: (604) 968-7539 ian@captainvancouver.com |
|||||||||||||||||
| Property Details | |||
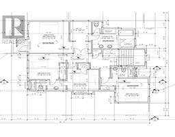
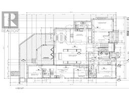
| An exceptional opportunity to build your nearly 4,000 sq.ft. dream home on a stunning 10,212 sq.ft. lot in the heart of North Vancouver. This permit-ready 7-bedroom, 6-bathroom residence offers a thoughtfully designed layout with bonus 2-bedroom, 1-bathroom legal suite with a private entrance plus a detached 2 car garage-perfect for extended family or additional income. Nestled in an outstanding location, this property offers unparalleled privacy and convenience, moments from Lynn Valley, highways, Future Lynn Creek Town Centre, Capilano University, trails, ski hills, top-ranked schools and parks. Save 1-2 years of time and carrying costs. Municipal red tape, property taxes, sewer and water, BC Hydro all has been done. No foreign Buyer's ban applies to this bare land property. (id:5347) | |||
| Property Value: | $1,758,000 | Living Area: | sq.ft. |
| Year Built: | Bedrooms: | 7 | |
| House Type: | Bathrooms: | 6 | |
| Property Type: | Owner Type: | Freehold | |
|
Added to MLS: 12/28/2025 4:10:50 AM |
|||





