|
|
|
Call Ian at
604 YOUR KEY to view this property
Ian Brett
Phone: (604) 968-7539 ian@captainvancouver.com |
|||||||||||||||||
| Property Details | |||
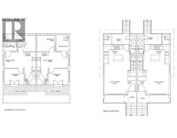
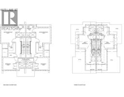
| Brand new home 2025 Summer. NO strata fee! A curated collection of bespoke Duplex homes on Vancouver's tree-lined Kerrisdale neighborhood. 2 Bed 1 Bath Legal rental suite in basement. Impeccable space designed enables spacious interiors for living. Smart Home systems equipped community, together with spa-like bathrooms, air conditioned and floor heating and more. Show by appointment. (id:5347) | |||
| Property Value: | $2,498,000 | Living Area: | 1994 sq.ft. |
| Year Built: | 2025 | Bedrooms: | 5 |
| House Type: | Duplex | Bathrooms: | 5 |
| Property Type: | Single Family | Owner Type: | Condo/Strata |
| Maint Fee: | $0.00 | Parking: | 2 |
|
Appliances: All Added to MLS: 9/20/2025 3:15:21 PM |
|||





