|
Call Ian at
604 YOUR KEY to view this property
Ian Brett
Phone: (604) 968-7539 ian@captainvancouver.com |
|||||||||||||||||
| Property Details | |||
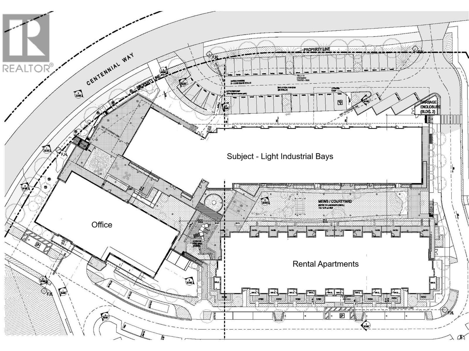
| Rare opportunity to own quality light industrial space by Anthem Properties at Mountain Village in Squamish, BC . This centrally located industrial strata complex has convenient access off Highway 99 with excellent loading, circulation and parking. All units offer substantial mountain views and the project abuts the mixed use Mountain Village project with customers and amenities in the neighbourhood. A total of 10 well appointed units starting at 2,246 sq. ft. that can be assembled to up to 10,000 sq. ft. Summer 2026 completion. Broad range of uses permitted in the Light Industrial zone (CD90) . Call for more info. (id:5347) | |||
| Property Value: | $2,086,665 | Living Area: | 3507 sq.ft. |
| Year Built: | 2026 | Bedrooms: | 0 |
| House Type: | Bathrooms: | 0 | |
| Property Type: | Industrial | Owner Type: | |
|
Added to MLS: 2/10/2026 3:05:09 AM |
|||





