|
Call Ian at
604 YOUR KEY to view this property
Ian Brett
Phone: (604) 968-7539 ian@captainvancouver.com |
|||||||||||||||||
| Property Details | |||
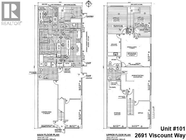
| Good-looking, front corner unit in this 9-unit self-managed complex neighbouring Home Depot in convenient North Richmond. Quick access to Oak & Knight St bridges + Highway 91 & 99. IL-zoned, 4,178 sq.ft. end unit with excellent natural light on 3 sides (2,089 sq.ft. up + 2,089 sq.ft. on main). Unit has a fully-equipped kitchen with exhaust system, grease trap, walk in cooler, gas or electric cooking, etc.; perfect for a small café, bakery, central or test kitchen for chain restaurant or pet food, etc.. Upstairs could be a trendy dining area. Three 2-pc washrooms. Southern half has a 10' x 8' grade-loading door at front. 9' ceilings on main (incl. warehouse) & upstairs. 4 assigned parking + loading bay. 1 block to bus stop. Your signage will be visible from Knight Street: great for branding aim at over 5% NROI (Net Return on Investment). (id:5347) | |||
| Property Value: | $1,988,000 | Living Area: | 4178 sq.ft. |
| Year Built: | 1988 | Bedrooms: | 0 |
| House Type: | Bathrooms: | 0 | |
| Property Type: | Industrial | Owner Type: | |
|
Added to MLS: 1/20/2026 1:15:29 AM |
|||





