|
Call Ian at
604 YOUR KEY to view this property
Ian Brett
Phone: (604) 968-7539 ian@captainvancouver.com |
|||||||||||||||||
| Property Details | |||
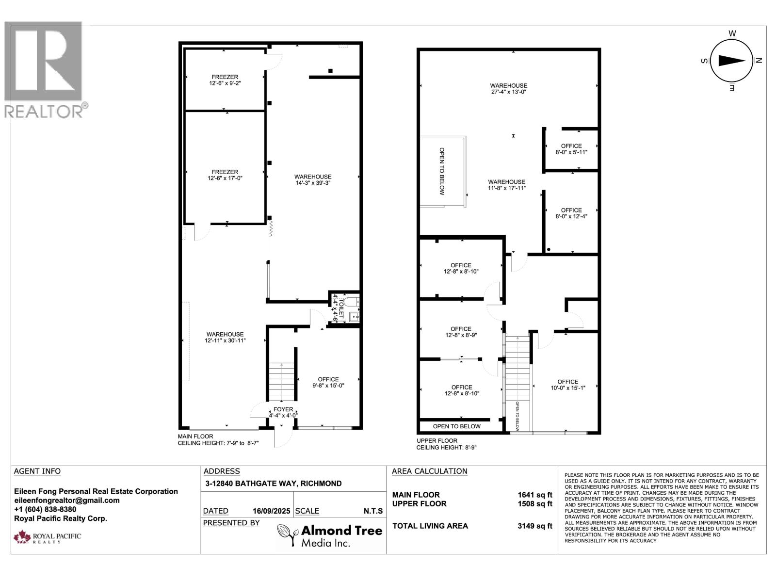
| This spacious first and second floor industrial/office unit is ideally situated in the heart of a bustling commercial hub. The property is close to IKEA, prominent retail outlets, commercial shops and dining places, providing excellent exposure and convenience for clients. Warehouse spaces, two freezers and one office on the main floor, with multiple offices and warehouse space on the upper floor. The unit is well-designed to support a variety of business operations, to facilitate efficient versatile requirements. Parking is conveniently located in front of the unit, ensuring easy access for customers and service team. Convenient location offers seamless connectivity to major transit routes. The combination of strategic location, functional design, and accessibility makes the property an exceptional opportunity for industrial and office users. (id:5347) | |||
| Property Value: | $1,122,000 | Living Area: | 3149 sq.ft. |
| Year Built: | 1981 | Bedrooms: | 0 |
| House Type: | Bathrooms: | 0 | |
| Property Type: | Industrial | Owner Type: | |
|
Added to MLS: 12/10/2025 5:10:58 AM |
|||





