|
Contact your
REALTOR® for this property
Ian Brett
Phone: (604) 968-7539 ian@captainvancouver.com |
|||||||||||||||||
| Property Details | |||
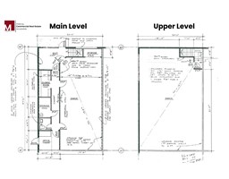
| Fantastic opportunity to own an end-unit industrial warehouse in the Newton core! Located in Sandel Industrial Park, this spacious two-level unit offers 2,705 sq.ft. of functional space (per BC Assessment) with open halls. Currently used as a dance studio, this unit suits a range of industrial or industrial office needs. Priced at just $499/SF -- one of the lowest in Surrey! A solid investment in a prime location. (id:5347) | |||
| Property Value: | $1,350,000 | Living Area: | Array sq.ft. |
| Year Built: | Bedrooms: | 0 | |
| House Type: | Bathrooms: | 0 | |
| Property Type: | Industrial | Owner Type: | |
|
Added to MLS: 12/11/2025 5:52:12 PM |
|||





